Продажа коттеджа

Московская область, Похлебайки,

121 м²
Площадь
30.0 м²
Площадь кухни
1
Этажность
6 сот
Площадь участка

13 500 000 ₽

111 571 ₽ за м²

ID объявления 12146840

Поделиться

Добавить в избранное

Старт продаж - на первые 5 готовых домов супер условия!

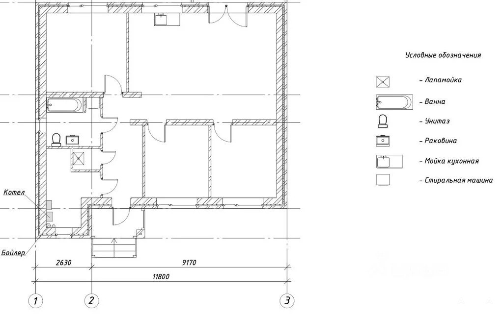
Одно этажный дом 121кв. м на участке 6 соток в коттеджном поселке Судниково Лайф

Планировка: 3 спальни, кухня гостиная 35кв.м, 2 санузла, котельная,

Высота потолков 3 метра.

Дом продается с чистовой отделкой!

Участок будет огорожен забором - штакетник!

коммуникации: электричество, вода - скважина, канализация - станция биологический очистки, газ

Посёлок Судниково Лайф, расположен в экологичной деревне Судниково (Солнечногорский район), всего 41 км от Москвы.
• Современные технологии строительства: свайно-ростверковый фундамент, утеплённая монолитная плита, стены из газобетона с кирпичной облицовкой.
• Полный набор коммуникаций: электричество, газ, вода (скважина), септик — станция биологической очистки.

Отдых и активная жизнь у воды
• Река Истра с пляжами менее 3 км.
• Большой выбор пляжей, бесплатных и платные пляжи при отелях — с кафе, прокатом лодок, шезлонгами и зонтиками.
• Озеро Сенеж в Солнечногорске — популярный курорт с городским пляжем, пирсом, детской зоной и водными развлечениями.

Для семьи и детей
• 5-10минут на авто — детский сад и несколько школ.
• В Солнечногорске — спортивный комплекс Олимп: бассейны, фитнес, единоборства, секции для детей.

Транспортная доступность
• Удобный выезд на М-11 и альтернативные шоссе (Ленинградское, Пятницкое, Волоколамское, Новорижское).
• Станция Подсолнечная (Солнечногорск) — всего 10 км: на комфортабельной электричке до Ленинградского вокзала ~45 минут.
• Автобусная остановка — всего в 100 м от посёлка. AFY-506733604

Дата обновления: 17 октября 2025