- 145 м²
- Площадь
- 30.0 м²
- Площадь кухни
- 1
- Этажность
- 6 сот
- Площадь участка
18 500 000 ₽
127 587 ₽ за м²
ID объявления 12100775
Поделиться
Добавить в избранное
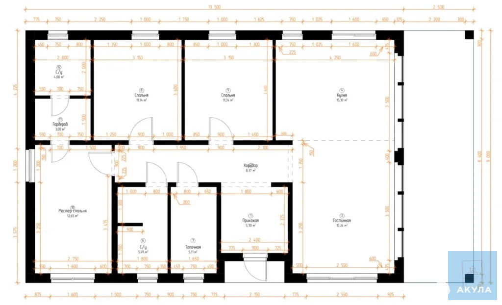
"Продаются 3 крайних к лесу дома по 145 кв.м. в укромном лесном месте со своим заездом и шлагбаумом в д. Обухово, Солнечногорского г.о., в 45 км от МКАД по Ленинградскому или Пятницкому шоссе.
Каждый дом имеет продуманную планировку, а именно: большую кухню-студию с высокими потолками (5 метров), мастер-спальню с гардеробом и санузлом, 2 отдельные спальни, санузел, техническое помещение. Дома построены профессиональным застройщиком из качественных материалов. В каждом помещении — панорамные окна, из которых открывается вид на лес и природу. Размер окон придает нереальный простор и освещенность.
Коммуникации: магистральный газ, электричество, скважина.
Развитая инфраструктура: церковь Успения Пресвятой Богородицы, детские сады и школы, супермаркеты , банкоматы и аптеки, автосервисы и автомойки, кафе и рестораны
Сдача объекта — первый квартал 2026 года.
Доступны все виды ипотек (льготная семейная и айти)." AFY-506732695
Дата обновления: 1 октября 2025